Objektart
Adresse
Objektdaten
Details
Das angebotene Projektgrundstück in Berkenthin stellt eine attraktive Gelegenheit für Bauträger und Projektentwickler dar, ein bereits konzipiertes Wohnbauvorhaben in einer gefragten Lage im Einzugsgebiet von Lübeck kurzfristig zu realisieren.
Für das Grundstück liegt eine durchdachte Planung für die Entwicklung eines modernen Wohnprojekts vor, das sich optimal in die bestehende Umgebung einfügt und den aktuellen Anforderungen an zeitgemäßen Wohnraum entspricht. Der Fokus liegt auf der Schaffung effizient geschnittener Wohneinheiten mit nachhaltiger Vermiet- bzw. Verkaufsperspektive.
Ein besonderer Vorteil dieses Angebots besteht in der fortgeschrittenen Projektentwicklung: Die wesentlichen Planungsleistungen wurden bereits erbracht, sodass ein zügiger Einstieg in die Realisierung möglich ist. Dies führt zu einer erheblichen Zeitersparnis im Vergleich zu klassischen Grundstücksakquisitionen mit anschließender Entwicklungsphase.
Die geplante Bebauung bietet die Möglichkeit, ein wirtschaftlich tragfähiges Wohnkonzept umzusetzen, das sowohl für Eigennutzer als auch für Kapitalanleger attraktiv ist. Durch die Lage im wachstumsstarken Umfeld der Metropolregion Hamburg sowie die Nähe zur Hansestadt Lübeck besteht eine stabile Nachfrage nach neu geschaffenem Wohnraum.
Erwerbsstruktur:
Das Projekt kann sowohl klassisch (Asset Deal) als auch alternativ über eine strukturierte Transaktion (Share Deal) erworben werden.
Beim Share Deal erfolgt die Übernahme über Anteile an einer Projektgesellschaft, in der das Grundstück sowie die projektbezogenen Unterlagen gebündelt sind.
Diese Option richtet sich insbesondere an Bauträger und Projektentwickler.
Die konkrete Ausgestaltung erfolgt in Abstimmung mit den jeweiligen rechtlichen und steuerlichen Beratern.
Weiterführende Unterlagen, insbesondere detaillierte wirtschaftliche Kennzahlen und Kalkulationsansätze stelle ich ausschließlich qualifizierten Interessenten im Rahmen eines persönlichen Austauschs zur Verfügung.
Das geplante Wohnbauprojekt in Berkenthin ist auf die Realisierung moderner, zeitgemäßer Wohneinheiten ausgerichtet, die den aktuellen Anforderungen an Komfort, Energieeffizienz und Funktionalität entsprechen.
Die Ausstattung ist so konzipiert, dass eine marktgerechte Positionierung sowohl im Eigennutzer- als auch im Kapitalanlegersegment ermöglicht wird. Im Fokus stehen langlebige Materialien, effiziente Grundrisse sowie eine wirtschaftlich sinnvolle Bauweise.
Die wesentlichen Ausstattungsmerkmale im Überblick:
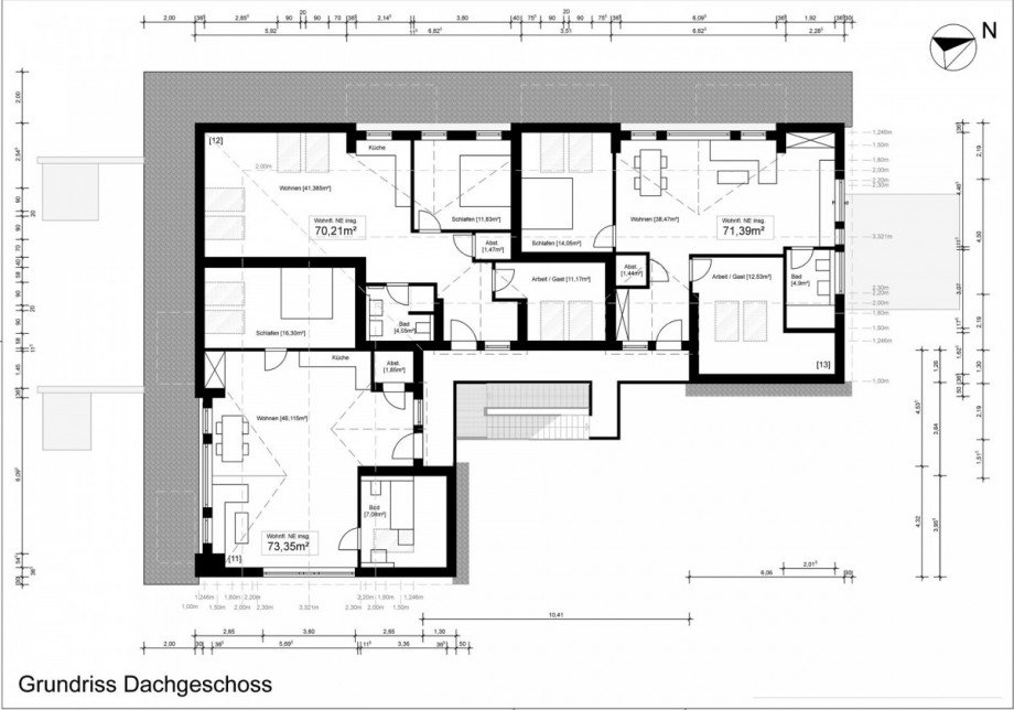
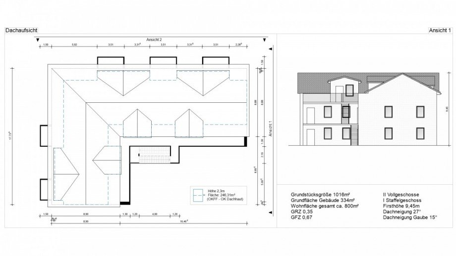
- genehmigte Brutto-Wohnfläche ca.836 m²
- Netto-Wohnfläche ca. 739 m² Wohnfläche
- 13 Wohneinheiten
- 5 barrierearme Erdgeschosswohnungen
- 16 Stellplätze
- moderne, klare Architektur mit zeitgemäßer Gestaltung
- effiziente und funktionale Grundrisslösungen
- helle Wohnräume durch großzügige Fensterflächen
- Ausführung nach aktuellem energetischen Standard
- hochwertige, pflegeleichte Materialien in den Wohnbereichen
- moderne Bäder mit zeitgemäßer Sanitärausstattung
- Außenbereiche mit Terrassen bzw. Balkonen
- Stellplatzlösungen entsprechend der Planung
- auf Wirtschaftlichkeit und Vermietbarkeit optimiertes Konzept
Das Ausstattungskonzept bietet eine solide Grundlage für eine nachhaltige Vermarktung und ermöglicht gleichzeitig eine flexible Anpassung durch den Erwerber, je nach Zielgruppe und gewünschtem Ausstattungsniveau.
Die dargestellten Planungen verdeutlichen das Entwicklungspotenzial und ermöglichen einen unmittelbaren Projektstart.
Das Projekt wird aktuell aktiv ausgewählten Bauträgern und Investoren angeboten.
Berkenthin ist eine gewachsene Gemeinde im Kreis Herzogtum Lauenburg in Schleswig-Holstein und überzeugt durch ihre attraktive Lage im Einzugsgebiet der Hansestadt Lübeck. Die Kombination aus naturnahem Wohnen und gleichzeitig guter Anbindung an urbane Zentren macht den Standort besonders interessant für moderne Wohnkonzepte.
Die Gemeinde bietet eine solide Infrastruktur mit Einkaufsmöglichkeiten für den täglichen Bedarf, Bildungseinrichtungen sowie einer guten medizinischen Grundversorgung. Darüber hinaus profitieren Bewohner von einer hohen Lebensqualität, geprägt durch eine ruhige, familienfreundliche Umgebung und ein gewachsenes nachbarschaftliches Umfeld.
Die verkehrliche Anbindung ist als gut zu bewerten: Die nahegelegene Hansestadt Lübeck ist in kurzer Zeit erreichbar und bietet ein umfangreiches Angebot an Arbeitsplätzen, Kultur, Bildung und Freizeitmöglichkeiten. Gleichzeitig ermöglicht die Anbindung in Richtung Hamburg eine Erreichbarkeit der Metropolregion, wodurch der Standort auch für Pendler zunehmend an Attraktivität gewinnt.
Ein weiterer Standortvorteil ergibt sich aus der Nähe zur Ostsee. Die Küstenorte entlang der Lübecker Bucht sind in kurzer Zeit erreichbar und erhöhen die Wohn- und Freizeitqualität erheblich. Diese Kombination aus ländlicher Ruhe und Nähe zu wirtschaftsstarken Regionen führt zu einer stabilen und nachhaltigen Nachfrage nach Wohnraum.
Insgesamt bietet Berkenthin somit eine ausgewogene Standortqualität mit Entwicklungspotenzial, die sowohl für Eigennutzer als auch für Kapitalanleger eine attraktive Grundlage darstellt.
Diese Immobilie wird provisionsfrei für den Erwerber angeboten. Die Vergütung für die Vermittlungstätigkeit trägt ausschließlich der Verkäufer.
Ein Maklervertrag kommt ausschließlich zwischen dem Verkäufer und dem beauftragten Immobilienmakler zustande. Mit dem Kaufinteressenten wird weder ein Maklervertrag geschlossen noch eine Vergütung vereinbart.
Der Immobilienmakler handelt als Interessenvertreter des Verkäufers. Mit dem Kaufinteressenten wird weder ein Maklervertrag geschlossen noch eine Vergütung vereinbart. Auch durch die Vereinbarung eines Besichtigungstermins, die Übermittlung von Objektunterlagen oder die Entgegennahme eines Kaufpreisangebots kommt kein Maklervertrag mit dem Kaufinteressenten zustande.
Haftungsausschluss
Alle Angaben in diesem Exposé basieren auf Informationen des Auftraggebers sowie ggf. Dritter. Eine eigenständige Überprüfung durch den Immobilienmakler hat - soweit nicht ausdrücklich anders angegeben - nicht stattgefunden.
Eine Haftung für die Richtigkeit, Vollständigkeit und Aktualität der Angaben wird daher ausgeschlossen. Dieses Exposé stellt keine Beschaffenheitsvereinbarung oder Garantie im rechtlichen Sinne dar.
Maßgeblich für den Vertragsgegenstand sind ausschließlich die im notariellen Kaufvertrag getroffenen Vereinbarungen.
Hinweis zur Projektentwicklung
Bei dem angebotenen Objekt handelt es sich um ein Projektgrundstück mit vorhandener Planung.
Sämtliche Angaben zu Bebauungsmöglichkeiten, Flächen, Nutzungskonzepten, Wirtschaftlichkeit sowie genehmigungsrechtlichen Rahmenbedingungen sind vom Erwerber eigenständig zu prüfen.
Der Immobilienmakler übernimmt insbesondere keine Haftung für:
die tatsächliche Bebaubarkeit des Grundstücks
die Genehmigungsfähigkeit des Projekts
die wirtschaftliche Umsetzbarkeit oder Kalkulation
Kontakt / Beratung
Sie möchten Ihre Immobilie verkaufen oder eine fundierte Einschätzung zum Marktwert erhalten?
Gerne beraten wir Sie persönlich und unverbindlich.
Ansprechpartner
Mobil: 00491634146585
info@dirkscheer-immobilien.de
Ich bin damit einverstanden, dass mir Karten von Google angezeigt werden. Es gelten die Datenschutzbedingungen von Google (https://policies.google.com/privacy).
Ich bin einverstanden